Home I/O - Plans de la maison¶
Télécharger
Télécharger
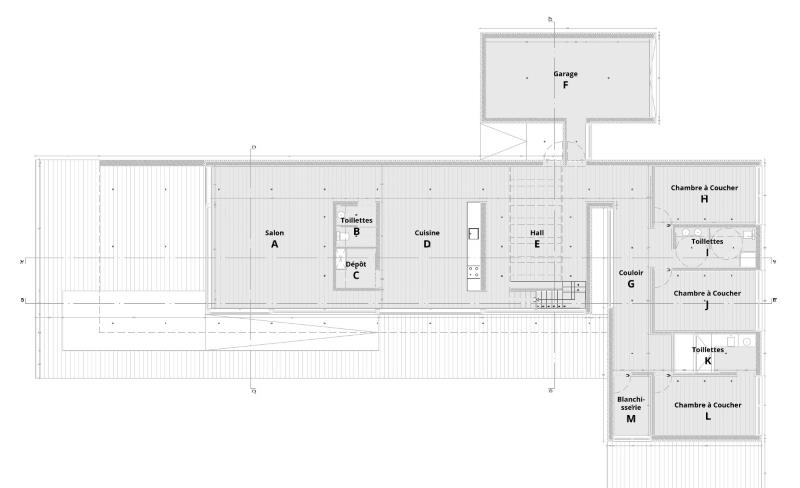
Vous trouverez ici les plans avec les cotes de la maison au format PDF et DXF (Compatibles avec les applications de CAO).

Télécharger
Télécharger
Vous trouverez ici les plans avec les cotes de la maison au format PDF et DXF (Compatibles avec les applications de CAO).
